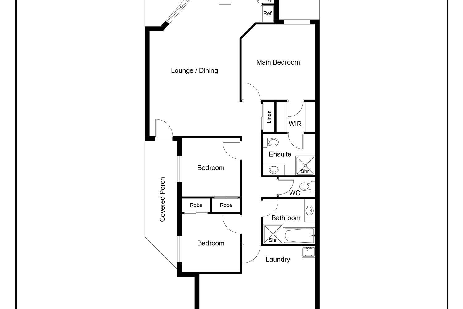
Welcome to your new home! This beautiful 3 bedroom duplex is located in the heart of Molendinar, one of the most sought-after neighborhoods on the Gold Coast. The property boasts a spacious living area, a modern kitchen, and three well-appointed bedrooms. The master bedroom features an ensuite bathroom and a walk-in closet. The other two bedrooms share a full bathroom.
The duplex is situated in a quiet and peaceful street, yet it’s just a short drive away from the bustling city center. You’ll enjoy the best of both worlds - the tranquility of suburban living and the convenience of urban amenities.
The property is also close to some of the best schools, parks, and shopping centers in the area. You’ll never run out of things to do
Distance as the crow flows:
- only 6km to the Broadwater Parklands
- only 7.5km to the Beach at Main Beach
- only 2.5km to Gold Coast University Hospital
- only 6km Southport CBD
- only 8.2km to Surfers Paradise
- only 800 meters to motorway entrance
- Arundal State School 2.23km
The double garage provides ample space for your vehicles and storage.
This is an opportunity to buy a low maintenance duplex close to everything before the expensive Southport prices move in!
Contact us today to schedule a viewing!
Disclaimer:
All information (including but not limited to the property area, floor size, price, address and general property description) is provided as a convenience to you and have been provided to Property Boutique by third parties. Property Boutique is unable to definitively confirm whether the information listed is correct or 100% accurate. Property Boutique does not accept any liability (direct or indirect) for any injury, loss, claim, damage or any incidental or consequential damages, including but not limited to lost profits or savings, arising out of or in any way connected with the use of any information, or any error, omission or defect in the information, contained on the Website. Information contained on the Website should not be relied upon and you should make your own enquiries and seek legal advice in respect of any property on the Website. Prices displayed on the Website are current at the time of issue but may change.












































